2842-46 N 9th St, PHILADELPHIA, PA

$499,000

Previous Next

0.29

Acres

About 2842-46 N 9th St

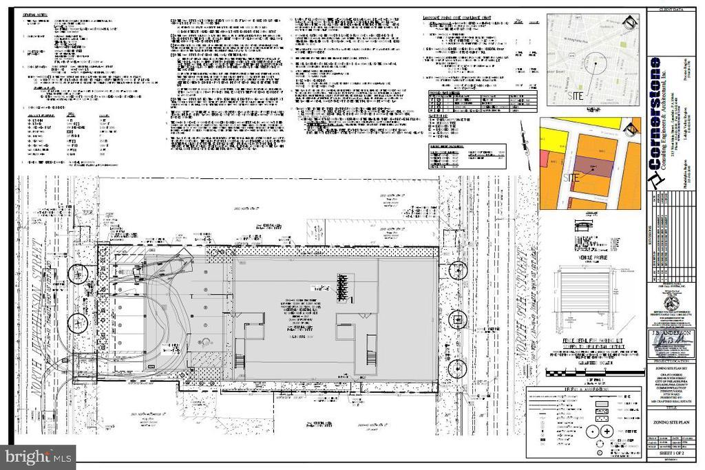
Incredible opportunity to acquire a 12,594 SQFT RM-1 zoned vacant lot in the Fairhill neighborhood of North Philadelphia, fully approved and ready for immediate development. This site comes with professionally designed plans for a 33-unit multi-family building featuring a mix of 1, 2, and 3 bedroom units, including accessible units, elevator access, roof deck, green roof, 10 off-street parking spaces, an interior bike room, and a mail/package room — tailored for modern urban living. The lot includes a full package of approvals and documentation: zoning permit, street approval, post-construction stormwater plan, complete ERSA plan, and environmental testing already completed — reducing risk and fast-tracking your development timeline. Ideally located near the Broad Street Line, this site offers convenient access to North Philadelphia Station, with direct transit from NRG Station to Fern Rock TC. With housing demand growing in this part of the city, this lot is positioned perfectly for a forward-thinking developer or investor ready to break ground. This is your chance to secure a fully entitled development opportunity with strong upside in one of Philly’s rapidly evolving neighborhoods. Drive by and make an offer!

Features of 2842-46 N 9th St

MLS® # PAPH2494224
Price $499,000
Bathrooms 0.00
Acres 0.29
Type Land
Sub-Type Land
Status Active

Community Information

Address 2842-46 N 9th St
Area 19133
Subdivision FAIRHILL
City PHILADELPHIA
County PHILADELPHIA-PA
State PA
Municipality PHILADELPHIA
Zip Code 19133

Amenities

View Street
Is Waterfront No

Interior

Has Basement No
Fireplace No

Exterior

Exterior Features Chain Link Fence, Cyclone Fence

School Information

District THE SCHOOL DISTRICT OF PHILADELPHIA

Additional Information

Date Listed June 19th, 2025
Days on Market 119
Zoning RM1
Foreclosure No
Short Sale No
RE / Bank Owned No

Listing Details

OfficeRE/MAX @ HOME
Contact Info2156073535

Listing Map

Request a Showing

Provide a valid email address.
When would you like to view this property?